Telefonsmøgen, Aarhus
Nyopførelse af 12 boliger ovenpå eksisterende erhvervslejemål
Projektbeskrivelse
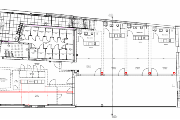
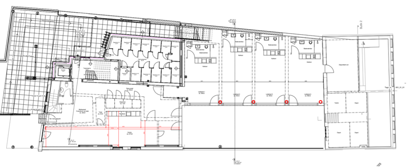
Telefonsmøgen 24 – 26B er et 4-fases byggeprojekt, der på nuværende tidspunkt gennemgår sin fjerde renovering. Det firdelte projekt blev indledt med en renovering af 2 erhvervslokaler, hvorefter man påbegyndte fase 2 og renoverede 2 lejligheder. Under fase 3 blev der opført 12 lejligheder og nu står fase 4 for døren, hvor 1. sal bliver konverteret til 5 nye lejligheder. Projekteringen omfatter etablering af tekniske installationer, brandadskillelse og lyd i de respektive lejligheder.
I forbindelse med projekteringen af Telefonsmøgen 24 – 26B, har Wolters Consulting leveret konstruktionsberegninger, projektering, tekniske dele og styret byggeledelsen. Wolters Consulting har bistået bygherre med henblik på inputs til beslutningsprocessen.









